Critères
Description
À 5 minutes à pied des plages et des commerces – Au calme absolu
Idéalement située à seulement 5 minutes à pieds des plages et des commerces, tout en bénéficiant d’un environnement paisible et préservé, cette nouvelle résidence contemporaine allie élégance, confort et qualité de vie.
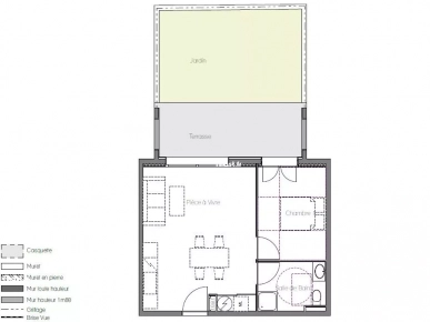
Composée de 39 appartements, la résidence Villa Mediterranée vous propose des logements allant du 2 Pièces au 4 Pièces, adaptés à toutes les envies.
L’architecture moderne et soignée s’intègre harmonieusement dans son environnement.
Chaque logement bénéficie :
• De belles terrasses spacieuses
• De larges ouvertures favorisant la luminosité
• De prestations de qualité
• De vues dégagées, avec pour certains appartements une vue sur la Citadelle de Calvi ou la Mer.
Ce programme neuf représente un engagement sûr et rentable grâce à :
• Une localisation privilégiée à proximité de toutes les commodités.
• Des normes de construction élevées garantissant la pérennité de votre bien.
• Des dispositifs de défiscalisation éventuels (à vérifier selon votre situation).
• Parkings souterrains (parking ou garage)
• Portail sécurisé et télécommandé, pour un accès contrôlé à l'immeuble.
• Climatisation réversible pour un confort optimal
• Espaces verts aménagés
• Local vélos
• Ascenseur
• Exposition : Sud-Est&
Pour plus d'informations, contactez nous dès aujourd'hui au 06 77 27 67 14.
Les informations sur les risques auxquels ce bien est exposé sont disponibles sur le site georisques.gouv
Mentions légales: Proposé à la vente à partir de 239745€ Frais d'agence inclus à la charge du promoteur.
Frais de Notaire réduits 2.5% Vente en VEFA